Our Dormer Designs

Our Dormer Designs are layed out so that they are fully functional on the ground floor should the budget dictate that the roof space cannot be developed from the start. As the need arises over time the completion of upstairs will be simplified by all the structural elements being in place from the outset. The provision of wiring, heating, and plumbing being left will ease the construction.
View our designs


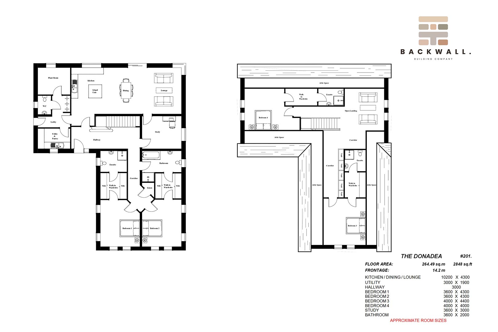
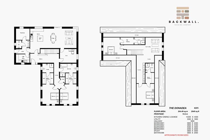
Click image to enlarge or view pdf

The Donadea


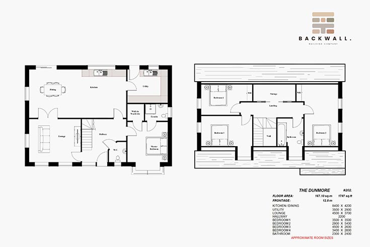
Click image to enlarge or view pdf

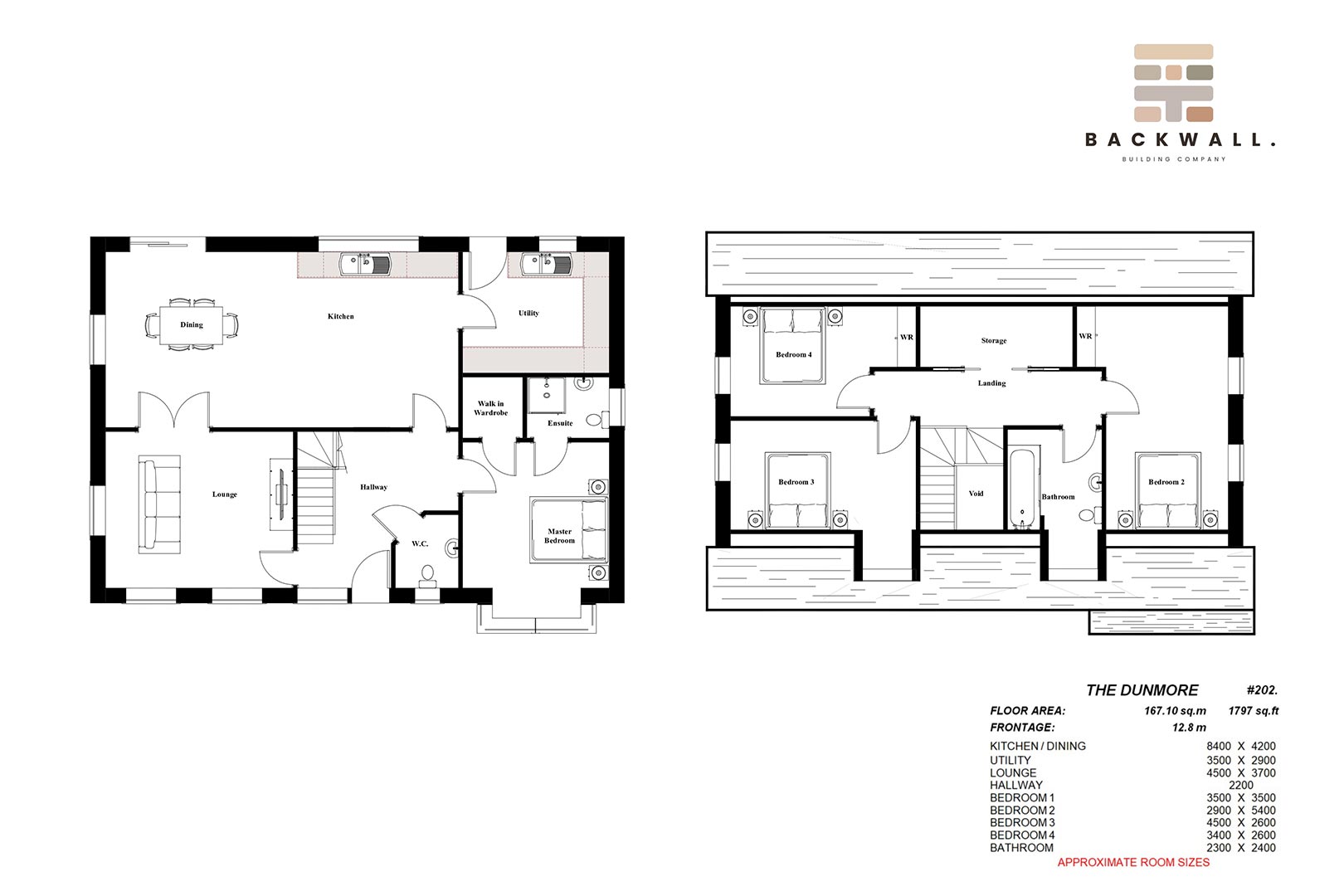
The Dunmore


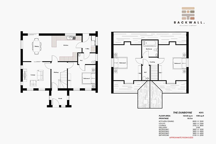
Click image to enlarge or view pdf

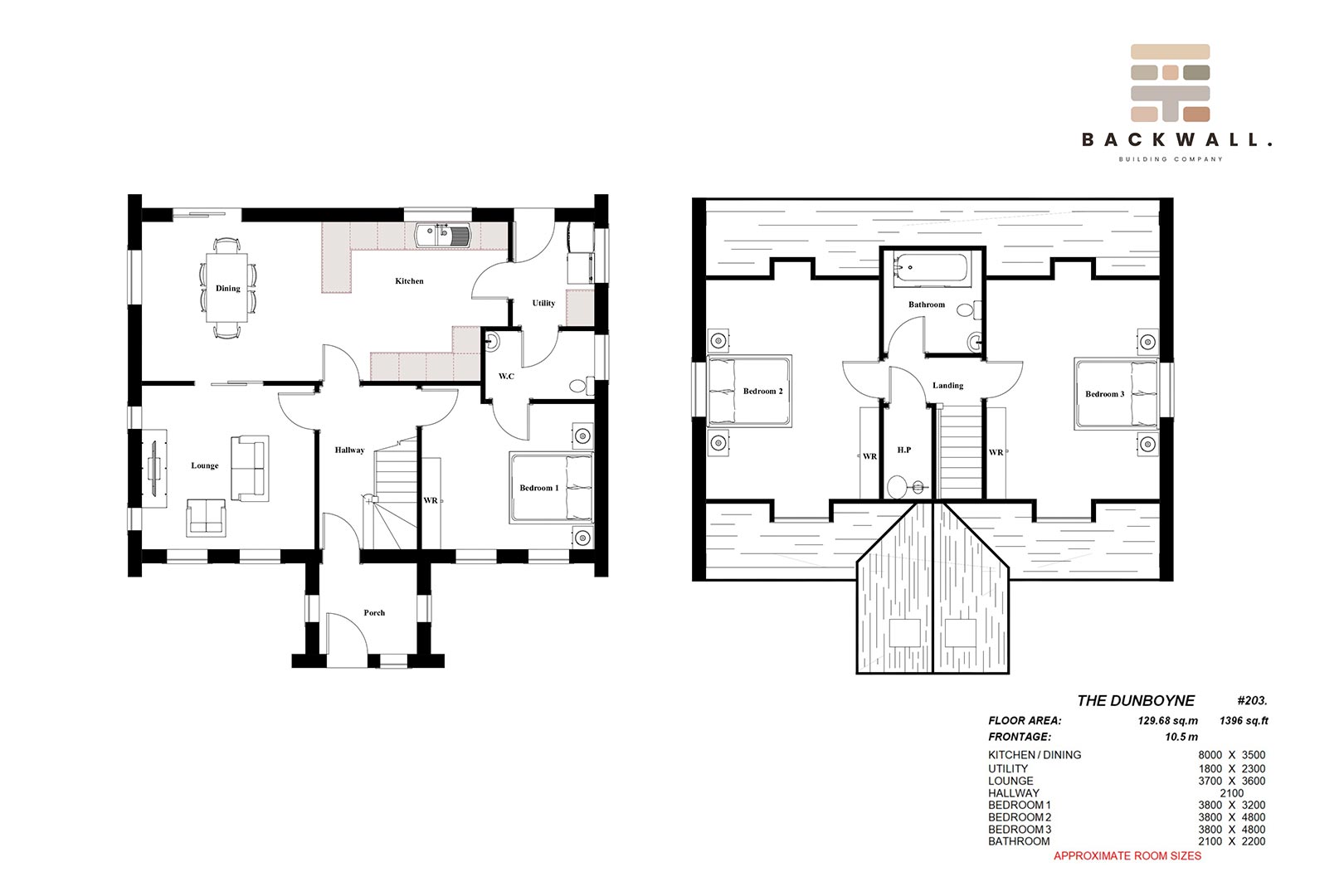
The Dunboyne