One & Half Storey Designs

Our One & Half Storey Designs incorporate the raising of external walls over the first floor level by approximately 1.5 m allows the full first floor level to be utilised. This is one of it’s major advantages over the dormer bungalow which has a reduced first floor area to that of the ground floor. These house styles are more sympathetic to the height of humans and being more traditional to the countryside are in most circumstances the preferred option for Planning Authorities. The sloping roof at the sides of these designs within the rooms are preferred by some clients as this leads to interesting shapes. The one and a half storey designs for the most part can be easily transformed into two storey houses by building up the external walls at first floor level.
View our designs


Click image to enlarge or view pdf

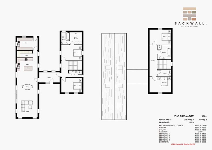
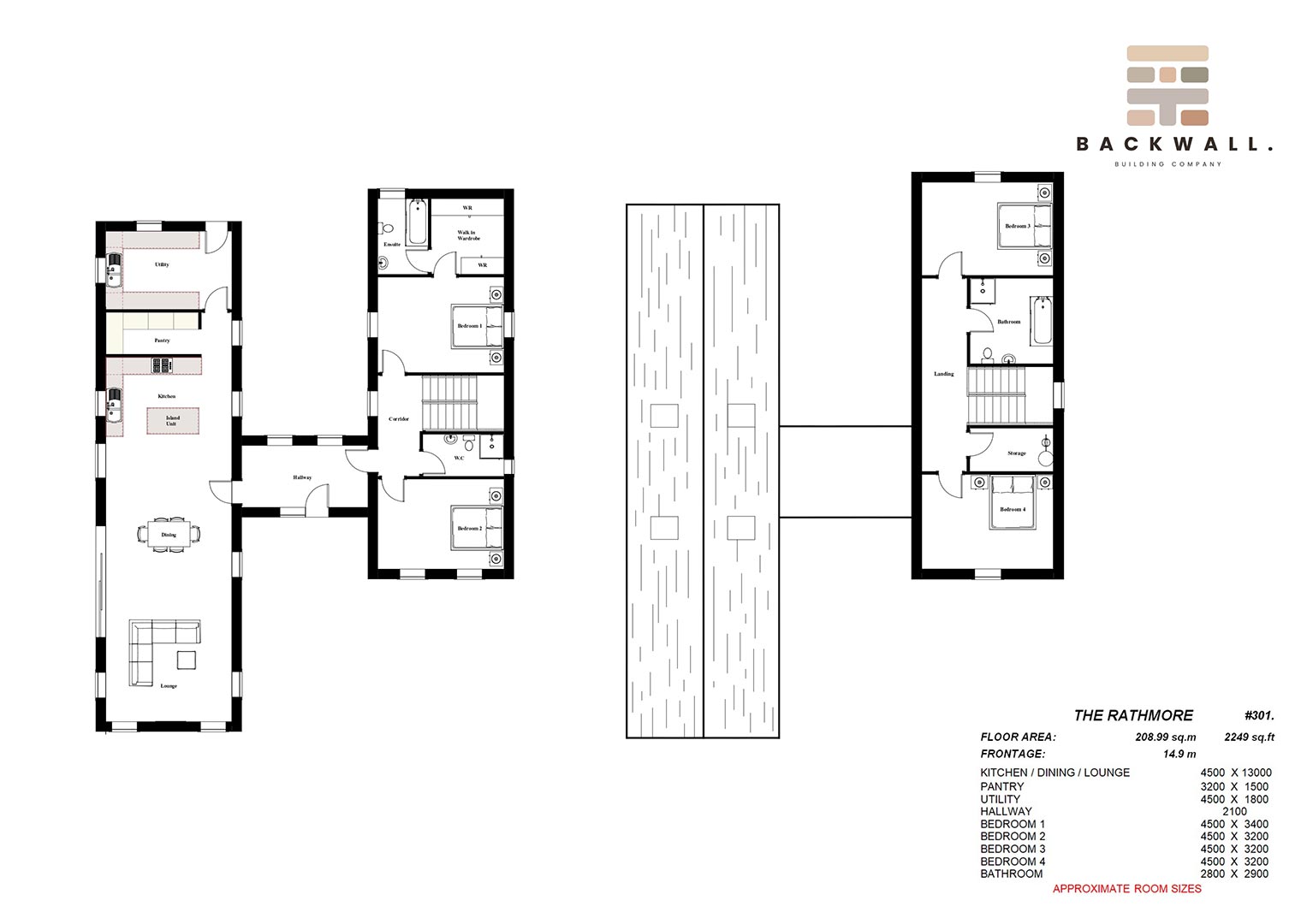
The Rathmore


Click image to enlarge or view pdf

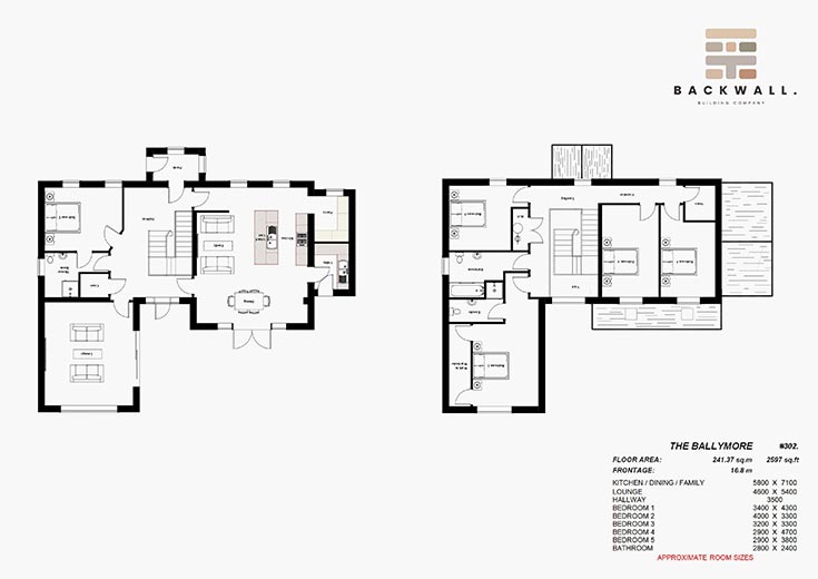
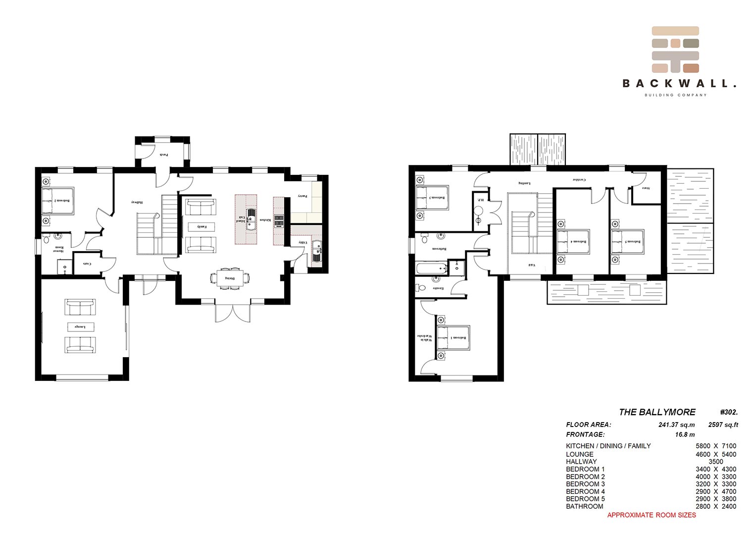
The Ballymore


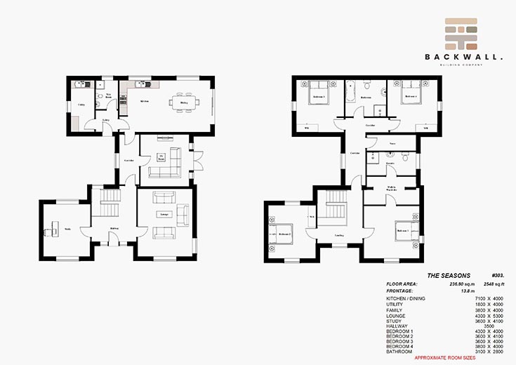
Click image to enlarge or view pdf

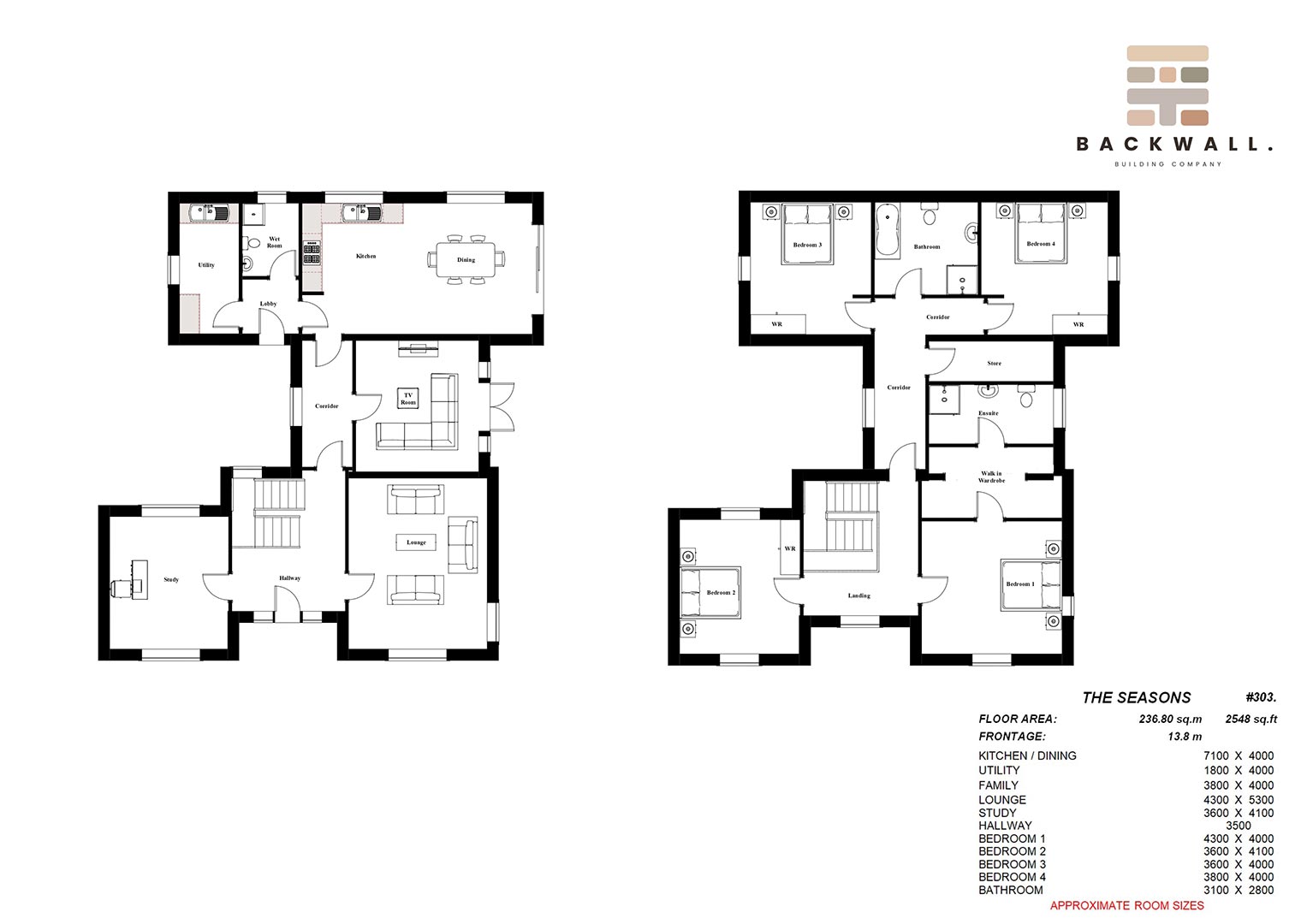
The Seasons


Click image to enlarge or view pdf

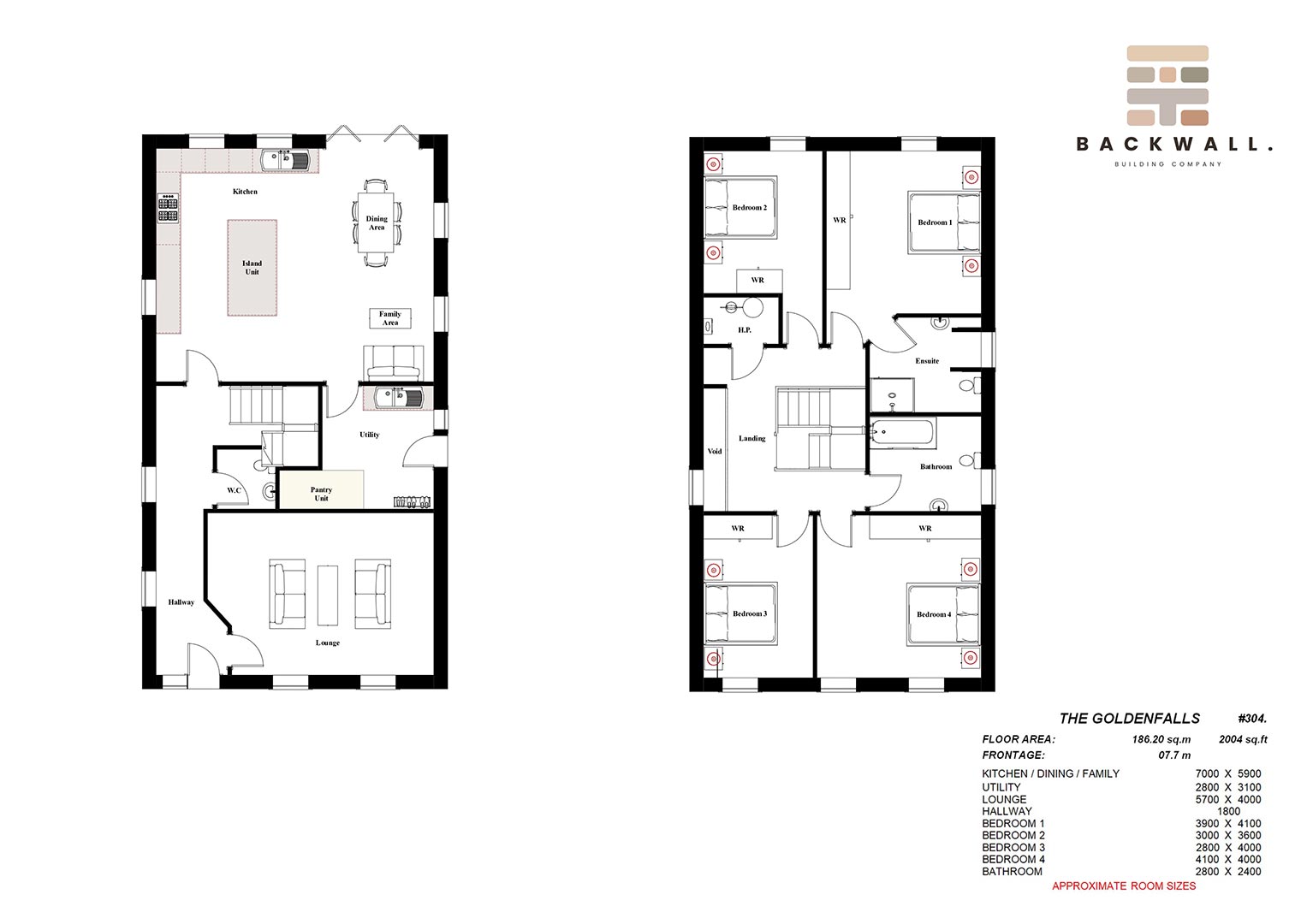
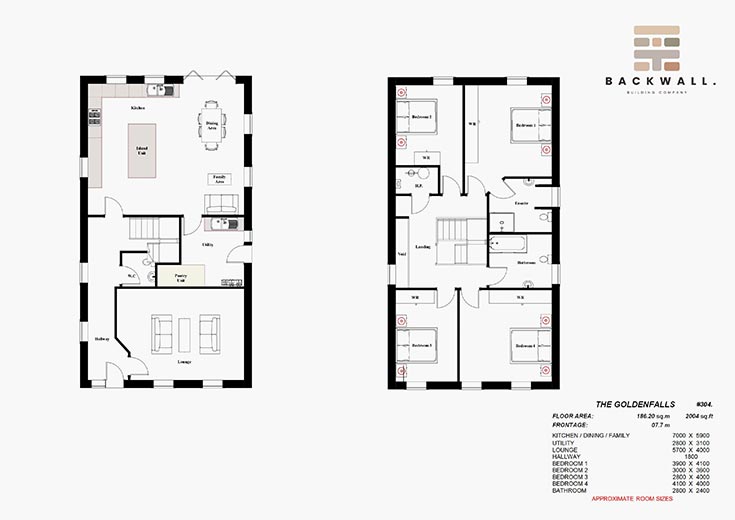
The Goldenfalls


Click image to enlarge or view pdf

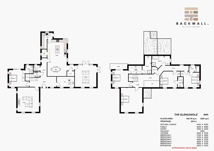
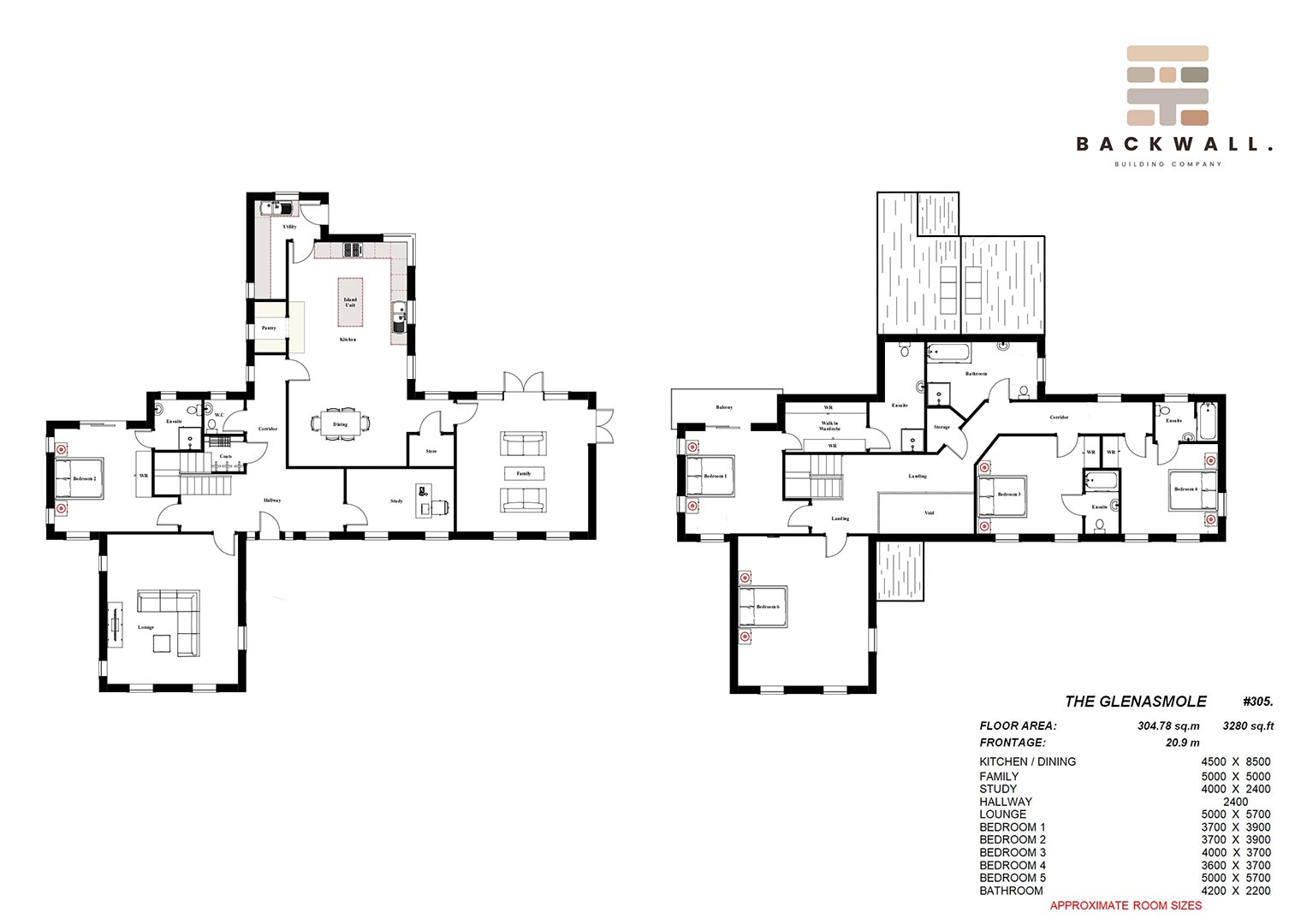
The Glenasmole


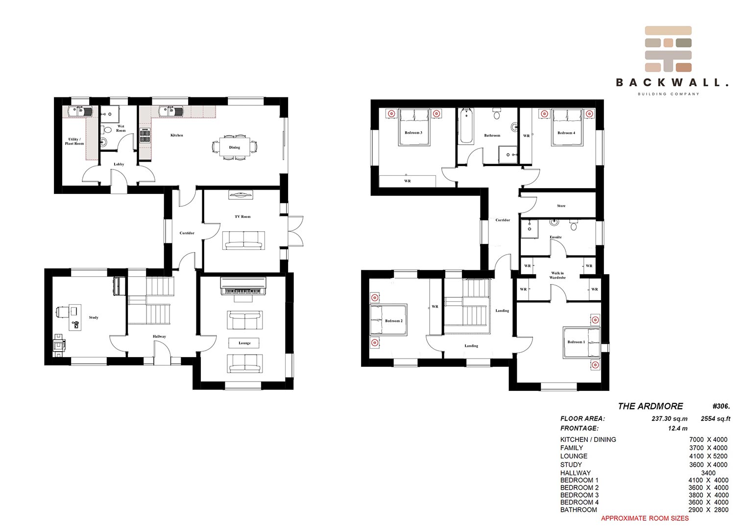
Click image to enlarge or view pdf

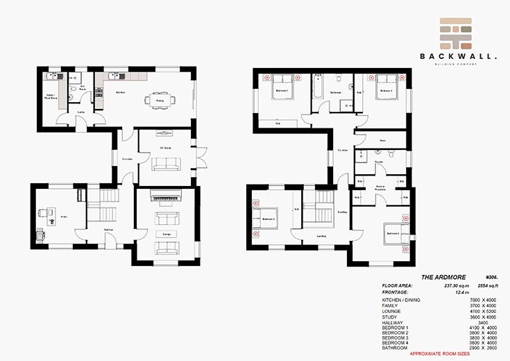
The Ardmore


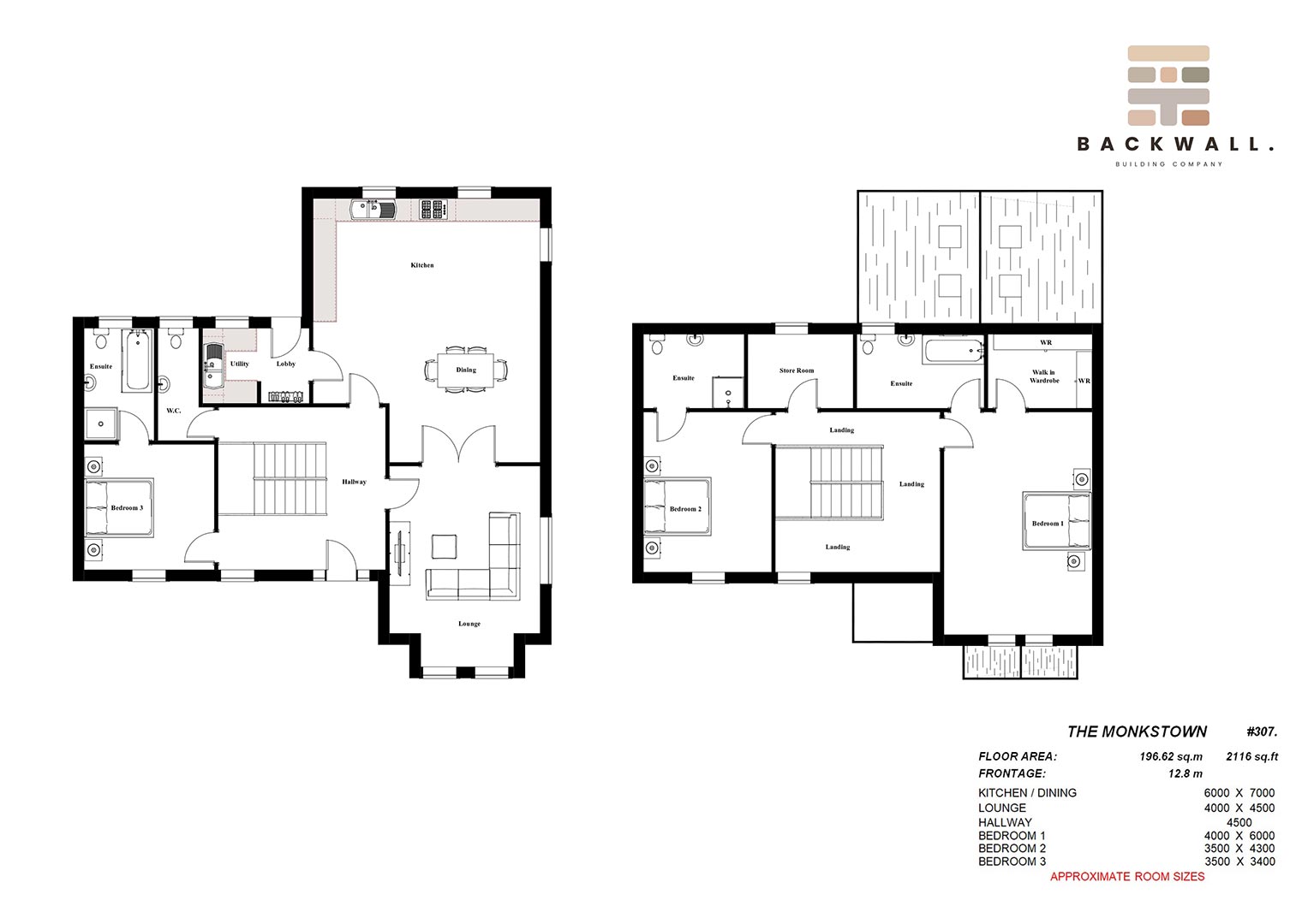
Click image to enlarge or view pdf

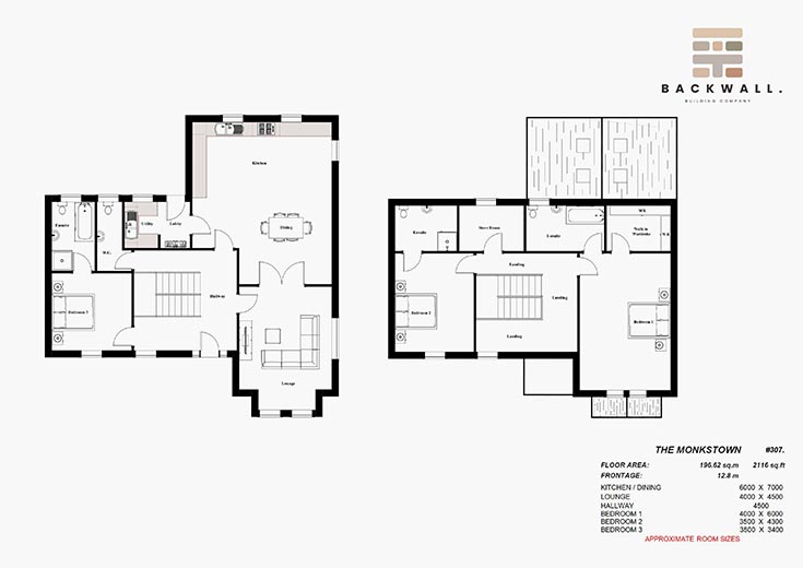
The Monkstown


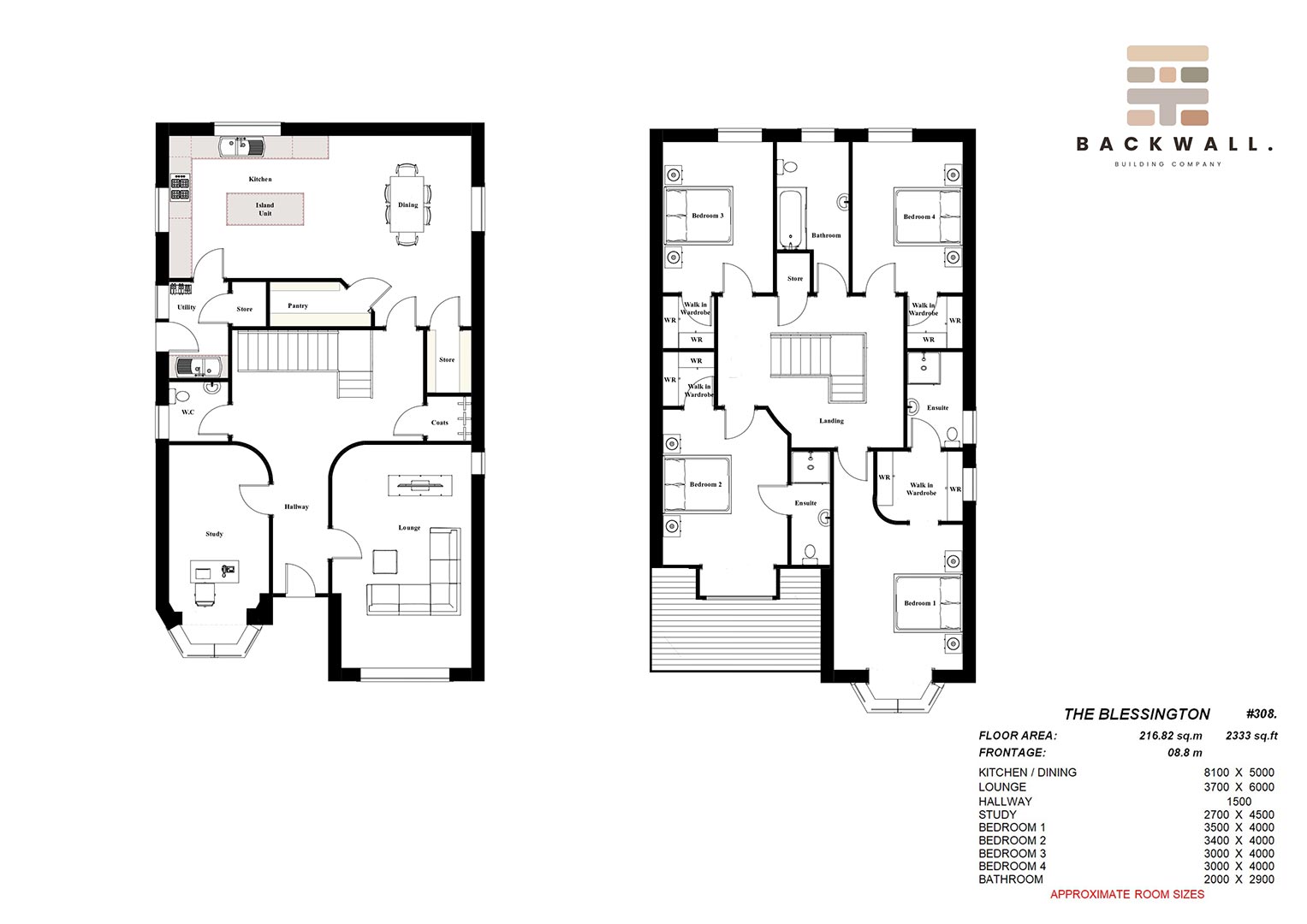
Click image to enlarge or view pdf

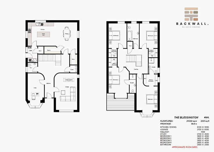
The Blessington